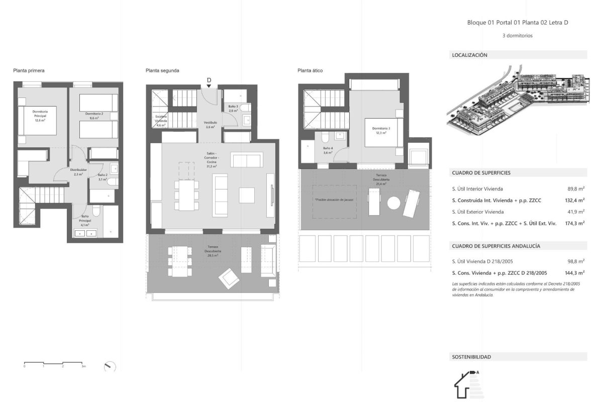
NIEUWBOUW WOONCOMPLEX BIJ ESTEPONA Nieuwbouw een exclusief project gelegen in Cancelada, een van de beste wijken van Estepona’s New Golden Mile. Het wooncomplex heeft 82 woningen verdeeld over 4 verdiepingen, voornamelijk duplexen, met 2 en 3 slaapkamers met terrassen en/of tuinen, evenals penthouses met solariums. Alle woningen hebben een berging en garage, en in de meeste kun je genieten van een prachtig uitzicht op de Middellandse Zee. De urbanisatie heeft een zwembad, ideaal om te genieten van de meer dan 320 dagen zon en mooi weer die de Costa del Sol te bieden heeft, zowel alleen als met het gezin. Je hebt ook toegang tot een uitgeruste overdekte fitnessruimte, een sportterrein buiten, 2 petanquebanen en het exclusieve Clubhuis van Cancelada. Gelegen op een bevoorrechte locatie, naast Estepona, op slechts een paar minuten van het strand en dicht bij golfbanen. Slechts 10 minuten van Marbella en 45 minuten van Malaga International Airport. Je kunt hier genieten van een echte levenskwaliteit, met een gemiddelde jaartemperatuur van 20º en meer dan 320 dagen zon per jaar. Je zult genieten van een grote verscheidenheid aan golfbanen, kilometers rustige kustlijn, zon, natuur en de gastronomie van het gebied, van de internationale restaurants tot de gastvrije lokale keuken. Het combineert perfect de traditie van de geplaveide straten met witgekalkte huizen en patio’s met hun potten vol kleurrijke bloemen, met moderniteit en de beste recreatiefaciliteiten aan de Costa del Sol. Het heeft een bevoorrechte ligging tussen de zee en de bergen, waardoor het een van de meest aantrekkelijke toeristische bestemmingen in de provincie is.
























