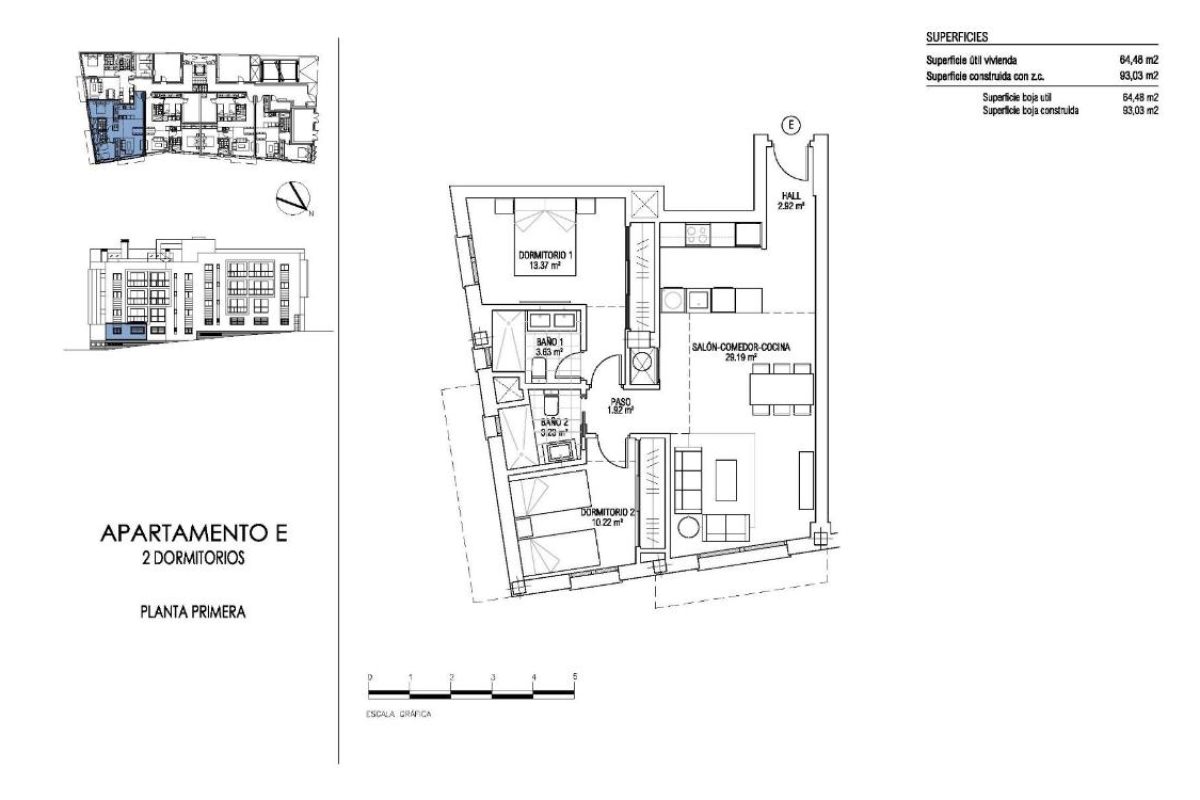
NIEUWBOUW APPARTEMENTEN IN ESTEPONA Een van de laatste kansen om een nieuwbouwwoning te kopen in het centrum van Estepona, aan zee en op slechts 1 minuut van het strand. Een droomlevensstijl die slechts door weinigen kan worden bereikt. Prachtige urbanisatie van slechts 23 appartementen; één appartement met 1 slaapkamer en 22 appartementen met 2 slaapkamers gelegen in het centrum van Estepona aan de Costa del Sol. Residential herdefinieert de mediterrane levensstijl die wordt weerspiegeld in de architectuur, is geïntegreerd in de mediterrane villa levensstijl van het zuiden van Spanje, alle comfort en typische recreatieve voorzieningen voor de deur. Op een steenworp afstand van La Rada strand van meer dan 2,4 km en midden in het hart van de Middellandse Zee, zeer uitgebreid en druk en heeft een groot aantal diensten. Comfortabele en functionele ruimte: appartementen met 2 slaapkamers hebben een totale oppervlakte die varieert van 88m², de kleinste, tot 105m², de grootste. Individuele parkeerplaatsen bevinden zich ondergronds en er is een lift vanuit de garage naar de woningen. Residentieel in het hart van de Costa del Sol en Estepona, op slechts een paar minuten van de jachthaven van Estepona en de nieuwe ontwikkelingen van het culturele Project van de Vuurtoren van Estepona, vertegenwoordigt de mogelijkheid om dicht bij een van de meest emblematische stranden van de Costa del Sol te wonen en op slechts een steenworp afstand van de diensten en vrijetijdsvoorzieningen van een typisch mediterrane stad die met wraak de 21e eeuw binnengaat. Als eerste of tweede woning, als vakantiehuis of om definitief te verhuizen naar een nieuw leven in het zuiden heeft deze residentie de perfecte locatie om enkele van de mooiste plekjes van Andalusië te verkennen. Dicht bij het project: Puerto Banús: 20 minuten Ronda: 1 uur Marbella: 30 minuten Málaga: 1 uur Jerez de la Frontera: 1,5 uur Tánger: 2 uur Tarifa: 1 uur Estepona is een van de weinige kustplaatsen die haar dorpse charme en karakter heeft weten te behouden. Desondanks zijn alle toeristische faciliteiten hier aanwezig, waaronder hotels, restaurants, vrijetijds- en culturele activiteiten en winkels. De vele straatcafés en tapasbars serveren nog steeds traditionele Spaanse lekkernijen. In de ‘oude stad’ zijn de steile, smalle straatjes autovrij en versierd met bloempotten in verschillende kleuren. Het is een genot voor fotografen. Je vindt bars en kleine winkeltjes in Estepona waar je ze het minst verwacht, allemaal heel uitnodigend en vriendelijk.
















