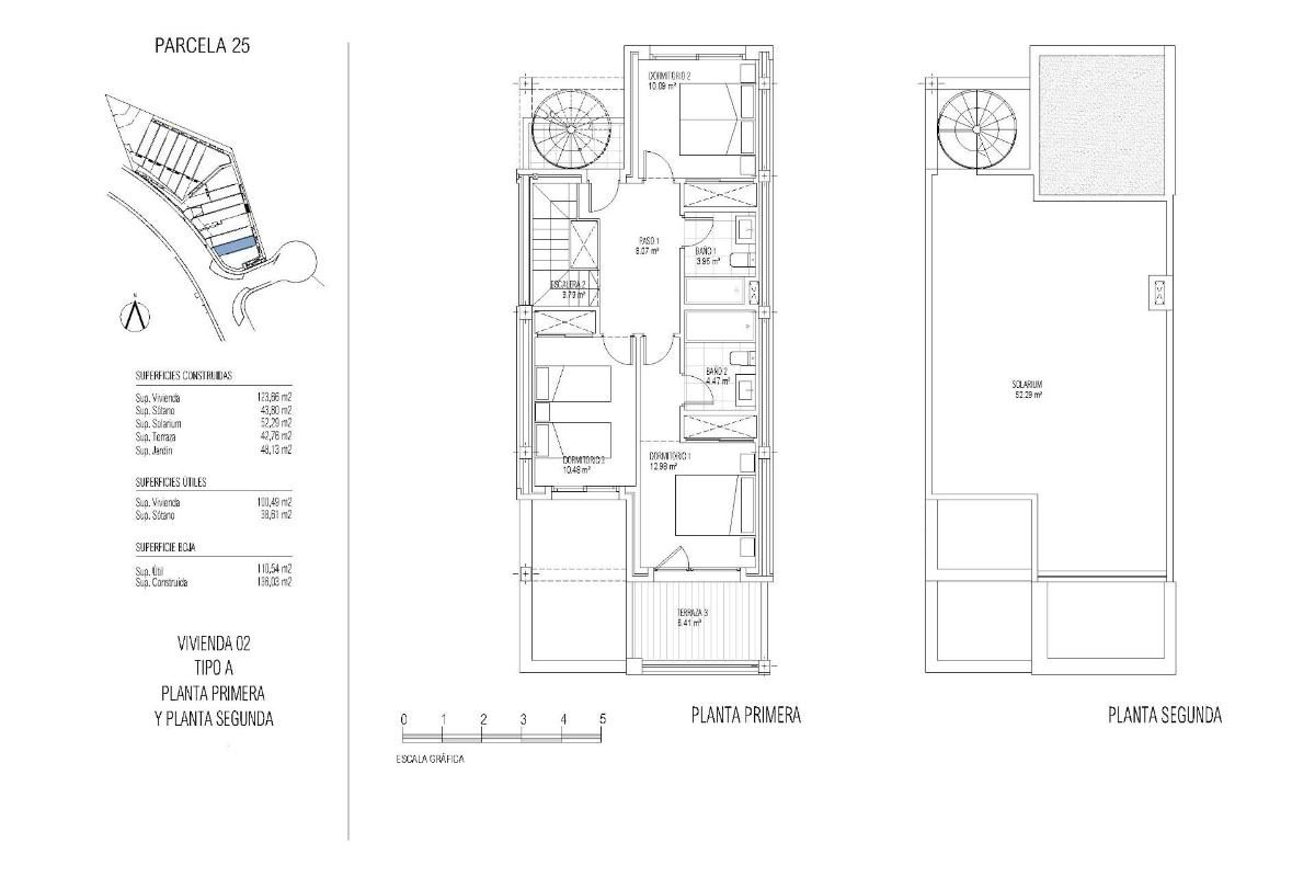
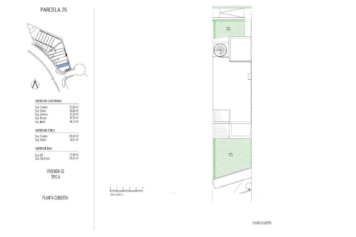
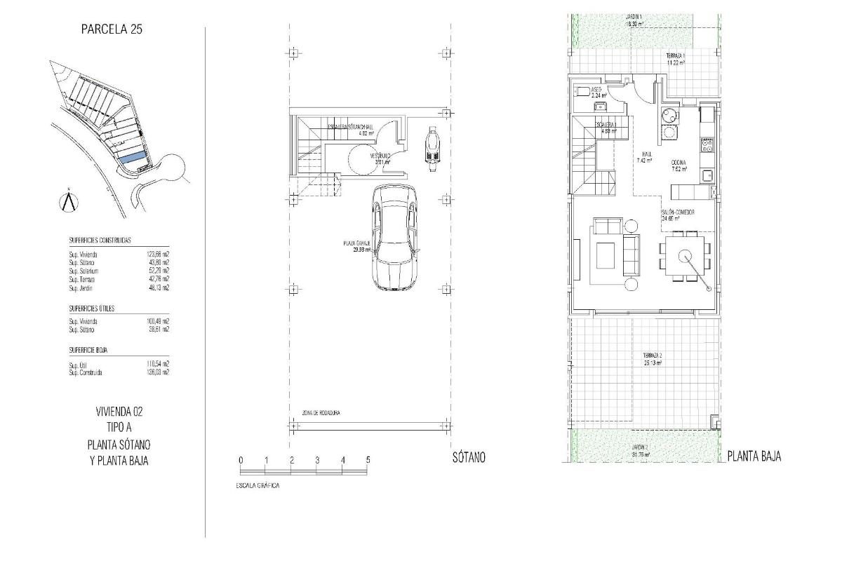
NIEUWBOUW VILLA IN LAS ROCAS EN MANILVA Nieuwbouwwijk van 16 herenhuizen en halfvrijstaande villa’s gelegen in Las Rocas en Manilva, aan de Costa del Sol. In deze woonwijk geniet je van het beste en meest spectaculaire uitzicht op zee, dat zich uitstrekt tot Gibraltar en de Marokkaanse kustlijn met de beste oriëntatie. De ideale omgeving om te genieten van de authentieke mediterrane levensstijl. Moderne woningen met 3 slaapkamers, 2 badkamers, open keuken met ruime woonkamer, inbouwkasten, terrassen, solarium, privétuin en kelder met garage. Wooncomplex volledig omheind en afgesloten. De gemeenschappelijke ruimtes zijn voorzien van LED-verlichting voor maximale energie-efficiëntie en opritten. Privé parkeerplaats voor twee auto’s. U kunt genieten van gemeenschappelijke ruimtes: het grote zwembad zal worden voorzien van moderne technologie van de nieuwste generatie. Er zal ook een paddle tennisbaan, kinderruimte. Residentieel gelegen op de perfecte locatie tussen Marbella en Sotogrande, in het hart van de Costa del Sol en zeer dicht bij het strand. Gemakkelijk bereikbaar met uitstekende wegverbindingen die direct aansluiten op de N340 bij km150. Gelegen op slechts 1 uur van het internationale vliegveld van Malaga en 25 minuten van het vliegveld van Gibraltar. Omringd door groene gebieden en de beste golfbanen van Europa. Op slechts 5 minuten afstand ligt La Reserva Club in Sotogrande, een geweldig recreatiegebied met golf, paardrijden en een resort met restaurantfaciliteiten, een wit zandstrand en een lagune voor sportactiviteiten.



























