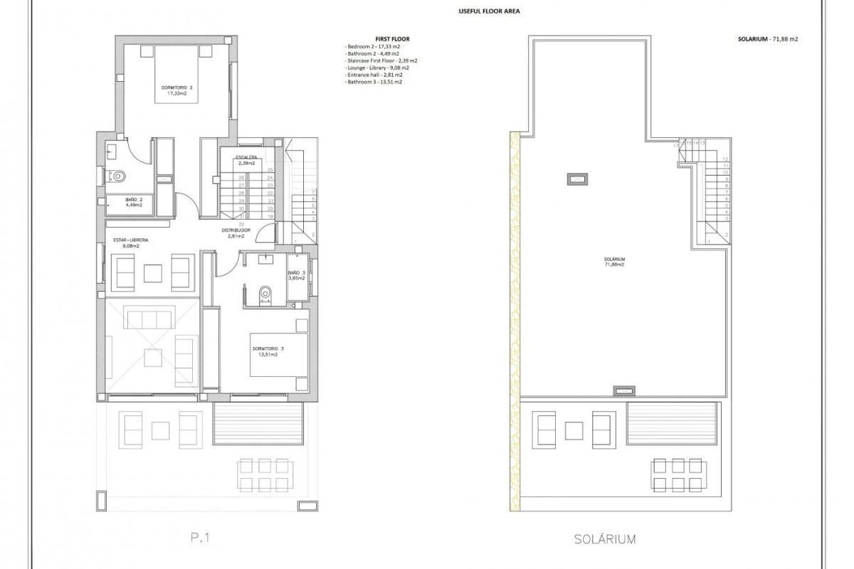
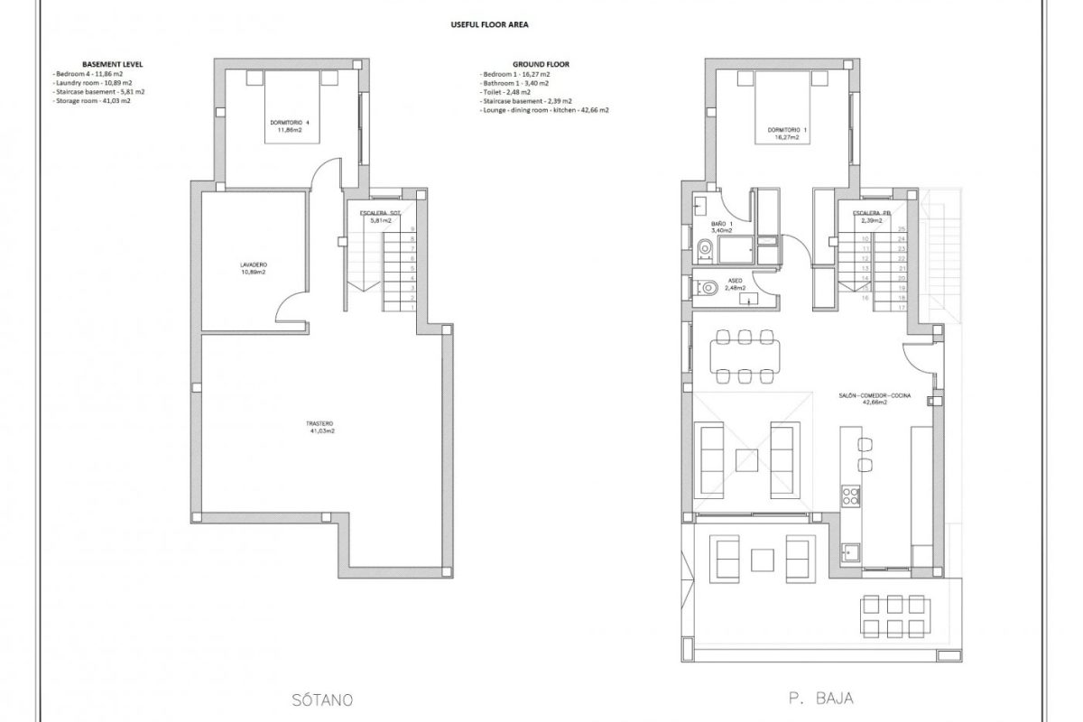
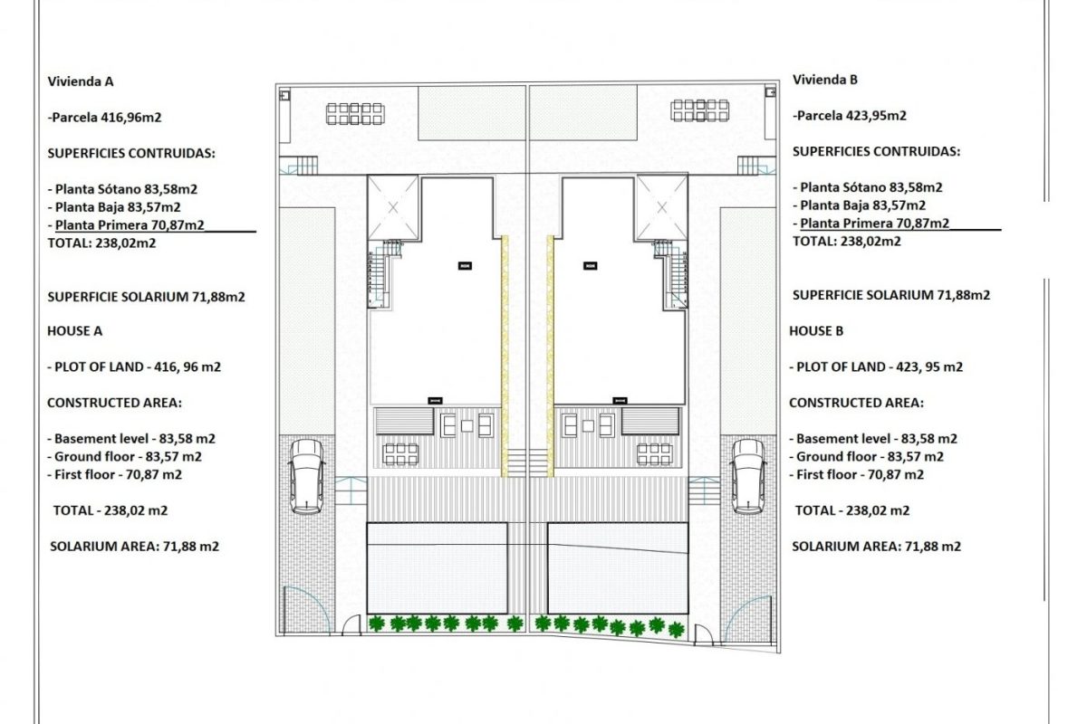
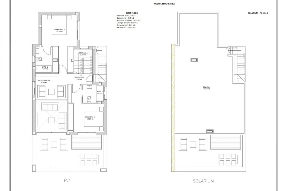
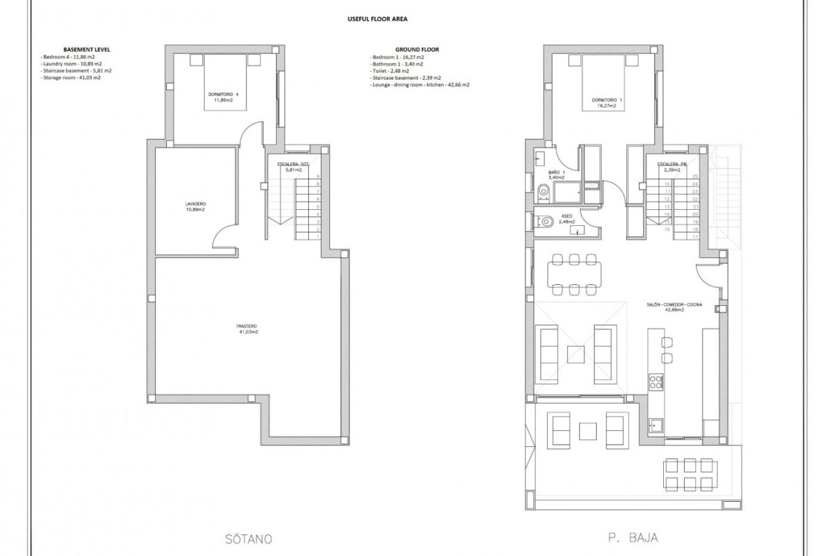
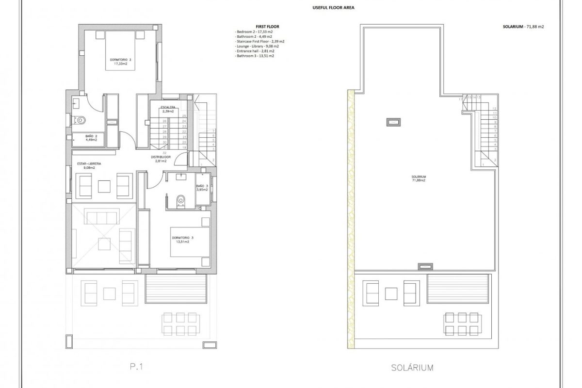
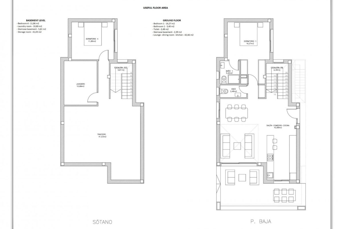
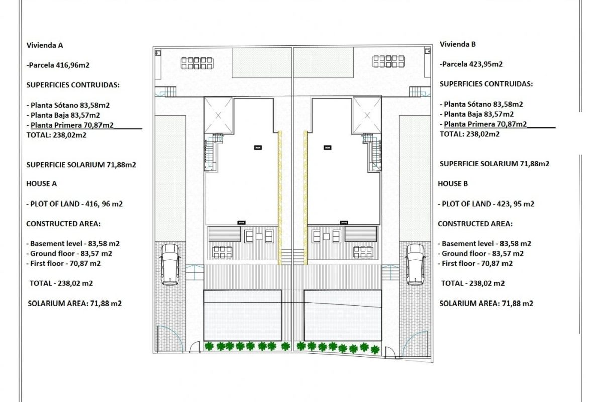
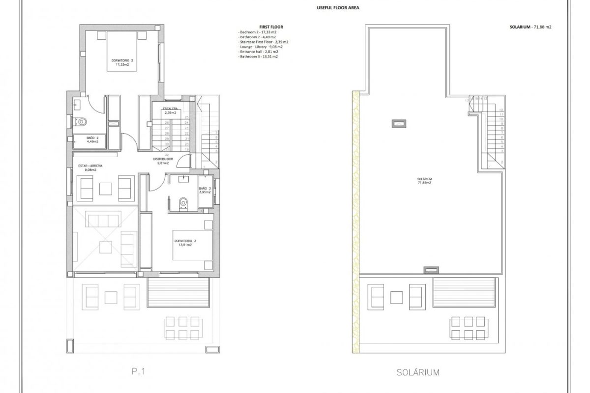
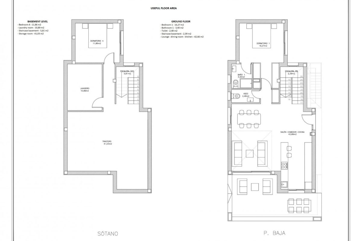
2 NIEUWBOUW VILLA’S IN TORREVIEJA 2 Nieuwe Mooie villa’s in Torrevieja. Villas heeft 4 slaapkamers, 4 badkamers, open keuken met de zithoek, inbouwkasten, eigen tuin met het zwembad en off road parkeerplaats, prive solarium en kelder. Villas gelegen op 15 minuten lopen naar het beroemde Playa de La Mata (5 minuten met de auto). Torrevieja is een Spaanse stad in de provincie Alicante, aan de Costa Blanca. Het is bekend om zijn typisch mediterrane klimaat en kustlijn. Het heeft promenades met resorts langs zijn zandstranden. Het kleine Museum van de Zee en het Zout herbergt tentoonstellingen over de visserij- en zoutgeschiedenis van de stad. In het binnenland vindt u het natuurpark Lagunas de La Mata-Torrevieja met wandelpaden en twee zoutmeren, de ene roze en de andere groen. De luchthaven van Alicante ligt op 40 minuten afstand en die van Murcia op ongeveer 1 uur.




























