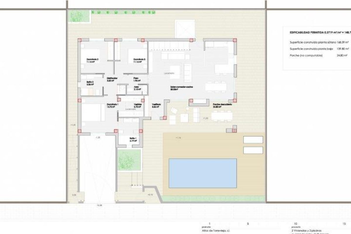
HUISVESTING IN EEN GECONSOLIDEERDE URBANISATIE AAN DE KUST Het bestaat uit 3 slaapkamers met 4 badkamers, woonkamer – eetkamer, keuken. Privézwembad, solarium / terrassen, airconditioning, vloerverwarming en sanitair warm water met aerothermie. Gelegen in Los Altos, (Samen Los Balcones). Zuidoost gericht. HET HEEFT alle diensten, scholen, ziekenhuizen, supermarkten op een paar meter afstand. Afstand tot de zee 3 minuten met de auto. Deze villa is gelegen in een van de bevoorrechte gebieden van de Costa Blanca Zuid, meer bepaald in Los Altos, op 5 minuten van Playa Punta Prima, Cala Ferry, dicht bij alle voorzieningen; restaurants, cafés, winkels, winkelcentra, scholen, ziekenhuizen, evenals toegang tot de snelweg.





